双葉町のアパートメント A13 入居中
- 間取り
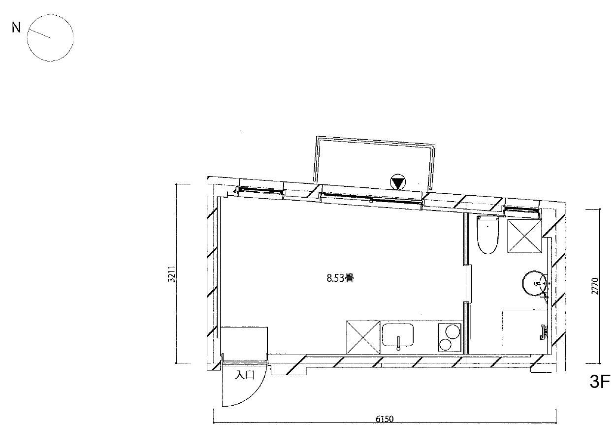
- 1R
- 面積
- 20.50㎡
- 住居
- 東京都板橋区双葉町27番17号
- アクセス
-
三田線 板橋本町 徒歩6分
東武東上線 中板橋 徒歩13分
- その他
- 施工年月
- 2020年1月
敷金礼金なし!初期費用を抑えたい方必見♪
双葉町のアパートメント 設計者のこだわり
街の共用部としてのimpasse
この建物は東京の西郊外、環状7号線と中山道から入った住宅地に位置する。
建蔽率が60%、容積率が300%の指定なので、都市計画が誘導するこのエリアのイメージは住環境を担保する40%の空地を残しつつ中高層の建物が並ぶ風景だろうか。実際には敷地周辺の道路幅員は狭く、敷地割も細かいので、稠密な低層の住宅地が広がっている。また街区割も細かく角地が多いので、建蔽率の緩和を受けた建物が並び、期待されている40%の空地は見て取れない。とりわけこの敷地の前面道路沿いでは街区型の建物のように、間口いっぱいに隙間なく建物が並んでいる。西欧の都市の街区を思えば整ったファサードが連なっているのだろうが、ここでは無自覚に慣習的なスケールの戸建や集合住宅がバラバラに並んでいる。
そのような風情の中にこの集合住宅では14戸のワンルーム住戸と8戸のメゾネット住戸を計画している。日影規制がかからない10mの高さの中で、事業としては共用部を削ぎ落として建蔽率の許す限り専有面積を最大化したい。手前(A棟)と奥(B棟)の分棟とし、A棟には建蔽率に算入されない基壇を設けて直接のアクセスとして、その他は共用廊下を設けずに階段室とブリッジによって動線を集約している。40%の空地はシンプルに道路際と住棟間にまとめられて、周辺の建物のスケールに対して不釣り合いな大きなピロティによって繋がれる。
敷地の対面の細い道路から連続するかたちでピロティを通り、住棟間の空地で行き止まる。そこは街区型都市に見られる“impasse“(袋小路)のようなものである。雨が降れば近所のお年寄りが基壇に腰掛けて雨をやり過ごし、学校帰りの子供たちが溜まるあき地のような場となっている。このimpasseは公共空間ではないし、具体的な用途が想定されているわけでもないが、誰でもいつでも立ち寄れる場である。この建築と都市の双方に属した街の共用部のようなものである。






