ときわ台のアパートメント D 入居中
- 間取り
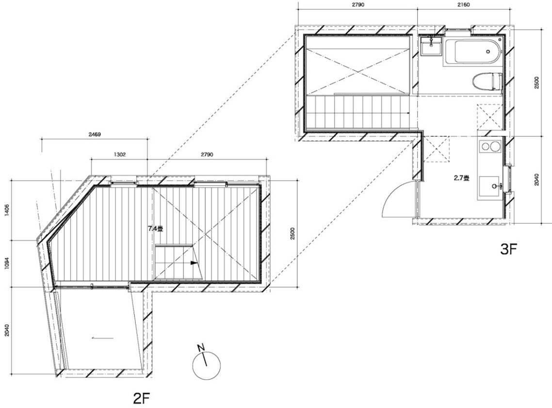
- 1K
- 面積
- 23.79㎡
- 住居
- 東京都板橋区富士見町38-6
- アクセス
-
東武東上線 ときわ台 10分
三田線 板橋本町 12分
東武東上線 中板橋 13分
- その他
- 施工年月
- 2018年1月
「ネット無料&南向き角部屋!メゾネットで開放感あるデザイナーズマンション」
こだわりの居住空間: 3階の南向き角部屋で、日当たり・通風ともに良好。メゾネットタイプのような趣のある間取りと、ダウンライトや照明付きのモダンな内装が魅力です。
充実の設備: ネット使用料不要で、ランニングコストを抑えられます。システムキッチン(IH)、温水洗浄便座、エアコン、24時間換気システムなど、快適な暮らしを支える設備が揃っています。
安心の防犯機能: 静脈認証や電子ロック、TVインターホン、防犯カメラを完備。高いセキュリティ性能で安心してお住まいいただけます。
ときわ台のアパートメント 設計者のこだわり
四方に開かれた積層L字型プラン
それぞれの住戸を取り巻く周辺環境・住環境が異なるために、それぞれの状況に応じた快適さを考慮して7戸の単身者用住戸は違ったプランで計画されています。
設計者:
インドアビュー
アクセス
東京都板橋区富士見町38-6



